首 页
关于奇力
拼搏在线(中国)唯一官方网站
发展历程
拼搏在线(中国)唯一官方网站
人力资源
售后服务
销售网络
联系我们
智能型张氏制动器
交直流两用制动器
减速型张氏制动器
高效节能电磁铁
地 址:石家庄市新华区东营工业区
联系人:张经理 13931160824
联系人:雷经理
13932186630
网 址:
http://www.www.222days.com
E-mail:
qilikj@126.com
Ⅲ型
时间:2013/10/17 8:57:04 浏览:4954次
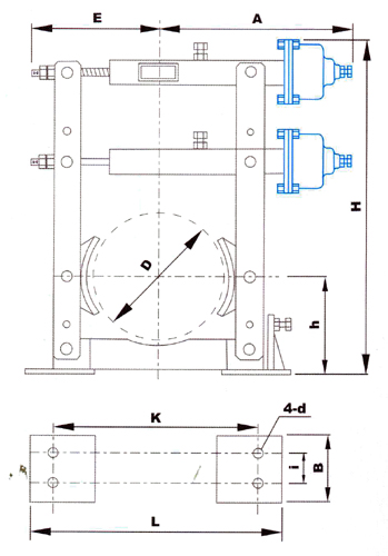
Ⅲ型 技术数据及结构尺寸
交直流自动器:万一停电,可直接用直流电打开制动器,安全的把吊物放下.
Ⅲ型 制动器可按用户需要定做(全部系列起动电流8-14A 工作电流0.6-1.0A)
制动器型号
制动轮直径(mm)
额定制动力矩(Nm)
配用电磁铁
结构尺寸
型号
额定推力(N)
h
k
i
d
≤H
≤E
A
L
B
Z
3
MW300-500-Ⅲ
300
500
上Z
3
MW300G-2300
2300
240
500
80
22
510
320
430
620
170
下Z
3
MW300JZ-2300
2300
540
Z
3
MW400-1000-Ⅲ
400
1000
上Z
3
MW500G-3500
3500
320
650
130
22
900
400
550
700
180
下Z
3
MW400JZ-3500
3500
项目
制动器型号
制动轮直径D(mm)
额定制动力矩(N.m)
配用电磁铁
结构尺寸
型号
额定推力(N)
h
k
i
d
≤H
≤E
A
L
B
Z
3
MW200F-420-Ⅲ
200
420
上Z
3
M200F-1300
1300
170
350
380
60
17
460
250
330
460
130
下Z
3
M200-800
800
Z
3
MW200F-500-Ⅲ
200
500
上Z
3
M200G-1300
1300
170
350 380
60
17
460
250
330
460
130
下Z
3
M200G-1300
1300
Z
3
MW300F-1060-Ⅲ
300
1060
上Z
3
M300F-2300
2300
240
500
540
80
22
710
320
430
620
170
下Z
3
M300-1800
1800
Z
3
MW300G-1100-Ⅲ
300
1100
上Z
3
M300G-2300
2300
240
500 540
80
22
710
320
430
620
170
下Z
3
M300G-2300
2300
Z
3
MW400-1600-Ⅲ
400
1600
上Z
3
M400G-2500
2500
320
650
130
22
900
400
550
700
180
下Z
3
M400G-2500
2500
Z
3
MW500-2800-Ⅲ
500
2800
上Z
3
M500-3500
3500
400
760
150
22
1030
420
750
810
200
下Z
3
M500-3500
3500
关于奇力
公司介绍
企业文化
公司荣誉
主营业务
拼搏在线(中国)唯一官方网站
公司动态
业界观察
拼搏在线(中国)唯一官方网站
产品展示
产品应用
发展历程
人力资源
人才战略
招聘职位
客服中心
联系我们
在线咨询
销售网络
Copyright ©
拼搏在线(中国)唯一官方网站
All Rights Reserved.
技术支持:
河北供求网
河北名企网荣誉企业-
河北企业名录
已收录
冀ICP备18000449号-1
免责声明:本站部分图片来源网络,版权归原创作者或原公司所有,如果您认为我们侵犯了您的版权,请告知,我们立即删除!
aty爱体育(中国)首页官方网站
|
KY开元(集团) - 官方网站
|
拼搏体育(中国)官方网站
|
aty爱体育·(中国)平台官方网站
|
开运体育(中国)官方网站-开运体育(中国)官方网站
|
开云链接官网(中国)有限公司-官网
|
拼搏体育(中国)官方网站
|
开云官方端网站登录入口-开云online(中国)
|
胜游体育(SYsports)-官方网站入口
|